Sere profesionale cu ventilație superioară tip SVS
Vă invităm să explorați în detaliu cum aceste sere redefinește standardele în creșterea plantelor și să descoperiți beneficiile incredibile ale acestui sistem avansat de aerisire.
Cuprins
Descrierea funcţională şi tehnologică
- temperatura minimă a patului de cultură;
- temperatura minimă biologică;
- temperturile optime de zi şi de noapte;
- temperatura maxima biologică;
- temperatura de germinare;
- conţinut optim de CO2;
- umiditatea relativă a aerului;
- umbrire;
- ventilaţie naturală sau forţată;
- ceaţă fină (evaporarea apei);
- folosirea foliei cu efect termic pentru acoperirea serei;
Fundaţii
I. Sere cu deschiderea serei de maxim D=10m
Varianta 1 - Fundaţii independente în cuzineţi din beton armat
Stâlpii de fundaţie se execută din tv.70x70x3mm şi se fixează în pahare din beton.
La sera de această dimensiune, stâlpii se pozează în pahare din beton.
Opţional se poate prevedea grinda perimetrală cu scopul de a asigura o închidere mai etanşă a serei.
Dimensiunea paharelor de beton, recomandată, este ø 40-50cmx 90cm sau pătrat de 40-50cm x 90cm. Recomandăm beton marca C20/25. Stâlpii de fundaţie se execută din ţeavă, nezincată, Tv 70x70x3mm.
Peste aceşti stâlpi se montează (se trag) stâlpii serei din teavă pătrată de 80 x 80 x3mmm.

Grinda perimetrală:


Varianta 2 - Încastrarea în sol a stâlpilor serei cu micropiloţi metalici
Fixarea structurii metalice în sol nu se mai face cu cuzineţi din beton armat .
Fixarea se realizează cu micropiloţi metalici din oţel tip KRINNER, ce se introduc în pământ prin înşurubare, dispozitivele asigură o fixare solidă, rezistentă şi de durată a serei în sol .



Utilizarea stâlpilor pe şantier


Avantajele sistemului de încastrare cu şurub Krinner
- Zona înconjurătoare rămâne neafectată;
- Extrem de stabil;
- Protecţia mediului înconjurător prin eliminarea poluarii cu betoane;
- Costuri reduse cu manopera de execuţie prin eliminarea terasamentelor, săpăturilor, cofrajelor, fier beton;
- Timp de execuţie scurt;
- Dezinstalarea şi îndepărtarea uşoară;
- Posibilitatea refolosirii datorită duratei de viată lungi- 25 ani;
Fişă tehnică şurub KRINNER pentru seră tip SVS -seria U,tip PU76-1135, L=1135, Dm=76

II. Fundatii la sere cu deschideri de 12-15m
Stâlpii de fundaţie se execută din tv.70x70x3mm şi se fixează în pahare din beton. În desenele de mai jos se poate vedea modul de fixare în beton a stâlpilor perimetrali cât şi a stâlpilor interiori.
Datorită lungimii lor stâlpii de fundaţie asigură o buna ranforşare a stâlpilor serei.
Stâlpii serei se trag peste stâlpii de fundaţie şi se fixează de aceştia prin intermediul unor şuruburi.


Structura metalică
Sera este de tip ”Gothic„ şi este proiectată pentru a fi adoptată pentru orice tip de cultură.
În funcţie de dimensiunea de suprafaţă sera poate fi realizată sub forma de tunel singular sau sera multitunel.

De asemenea această formă permite o iluminare mai bună şi pe timp friguros asigură o alunecare mai uşoară a zăpezii.
În funcţie de zona geografică unde va fi amplasat sera şi de condiţiile meteo sera poate fi prevazută cu ventilare naturală (fereastra) simplă sau cu ventilare cu fereastră dublă (fluture).


Materiale
Materialele folosite la execuţia structurilor metalice au certifcate de calitate emise de producători conform normelor ISO 9001 şi au următoarele caracteristici:
- stâlpii, arcele, bare, zăbrele sunt executate din ţeava sudată de construcţii, zincate la cald.
- oţelul folosit este de tipul S 235 cu diferite grade de dezoxidare şi este ales cu respectarea standardelor SREN 10.020; 10025 şi SREN 1993-1-10 privind alegerea claselor de calitate a oţelului.
Execuţia subansamblor structurii metalice se face cu respectarea prevedrilor STAS 7.009 si STAS 8.600 privind toleranţe şi asamblări.
Zincarea – toate ţevile componente ale structurii metalice sunt supuse unei operaţiuni de zincare termică conform prevederilor standardelor ISO 1179; ISO 1461 privind grosimea stratului de zinc, calitatea stratului de zinc şi uniformitatea acestuia.
Prin zincare se depune un strat de zinc cu grosimea de 60-70 microni respectiv min.275g/mp.

Coliere
Organe de asamblare
Organele de asamblare se execută din oţel grupa de rezistenţă 8.8 şi sunt obligatorii în execuţie zincată.
Dimensiuni generale
Deschiderea serei: D= 8m;9,6m;10m;12m;15m;
Lungimea serei: L = 100-200m
Traveea: d = 2,5m;(2m)(3m)
Înălţimea la jgheab: h = 3m; 4m; 6m, (3,5m, 4,5m, 5,5m)
Înălţimea la coamă; H = 5m; 5,5m; 6m; 6,5m (7,5m, 8m)
Dimensiunile din paranteze atrag după sine pierderi substanţiale de material metalic şi implicit determină creşterea costurilor.
Condiţii generale de proiectare
Sera se calculează la următoarele solicitări generale:
- încărcare la zăpadă -> 70-90kg/mp
- încărcare datorată culturii -> 30-35kg/mp
- încărcare la vânt-rafale -> 120km/h
Conform normei europene EN13031-2020, calculul de rezistenţă se face pentru:
a) încărcare la zăpadă -> 85-90kg/mp – zona 3, conform tabel.
Conform normei europene EN13001/2020 încărcătura de zăpadă este calculată pe o perioadă minimă de referinţă, referitoare la caracteristicile zăpezii, respectiv pe 10 ani.
Informativ: o cantitate normală de zăpadă are greutatea volumetrică de 200daN/mc ceea ce înseamnă ca 1cm = 2 daN/mc.
Rezultă următoarele încărcături pe mp la nivelul solului:
Date constructive
Constructiv s-a ales arcul gotic, aşa cum se vede în desen. Arcul este format din două ţevi rotunde cu sprijin pe stâlpii serei care se fixează pe pilonii de fundaţie .


Caracteristici constructive pentru un tunel
Structura metalică
Stâlpii serei
Stâlpii perimetrali ai serei se fixează pe stâlpii de fundaţie cu şuruburi.
Stalpii interiori se realizează din tv.80x80x3mm la aceaşi lungime cu stâlpii perimetrali.
Stâlpii serei, atât cei perimetrali cât şi stâlpii interiori se fixează cu şuruburi pe micropiloţii de fundaţie. (a se vedea fundaţia)
La capete, stâlpii serei s-au prevăzut cu un dispozitiv special tip.Y, dispozitiv ce permite fixarea rigidă şi sigură a arcadelor serei de stâlpi, sau fixarea arcadei cu „capison” mobil aşa cum se vede în pozele ataşate.
Stâlpii de la partea frontală a tunelelor de seră se execută din ţevi rectangulare de diferite dimensiuni - tv. 120x60x3mm; 60x60x3mm.



Arce
Arcele se asamblează,la coamă, cu şuruburi prin intermediul unor straturi din tv.Ø54x2mm
Prinderea rigidă a arcelor pe stâlpiiserei se face cu dispozitivul special tip.Y.
Arcul de boltă, pentru serele cu deschidere mare,respectiv 12-15m se execută din tv.80x60x2mm.
Suportul cultură şi structura de rezistenţă:
Se realizează din tv.Ø32x2mm pentru barele orizontale si tv. Ø26,9x2mm pentru zabrele.
Fixarea suportului de cultura pe arcada serei se face cu ajutorul colierelor şi şuruburilor.
A se vedea detaliul de mai jos, detaliu în care apare şi ţeava frontală tv.60x60x3mm prevăzută pentru prinderea sistemului de umbrire. De asemenea se observă fixarea arcadei de stâlp prin dispozitivul tip Y cu ţeava Ø54x2mm.
Bara orizontală a suportului de cultură este poziţionată la înălţimea de 3m-5,5m faţă de sol( funcţie de înălţimea stâlpului serei, permiţând astfel cultivarea de plante cu dezoltare mare pe verticală.).


Sunt prevăzute 3 bare longitudinale, o ţeava (bara) pe coamă şi două ţevi (bare) pe laterale.
Barele laterale se execută din tv Ø Ø26,9x2mm, pe partea fără fereastra şi ţeava tv20x20x2 pe partea cu fereastra.
Pe această longitudinală din ţeava 20x20x2mm se închide fereastra care are balamalele fixate pe longitudinală de coamă.
Bara longitudinală de coamă se execută din tv.40x40x2mm.
Aceasta are şi rolul de suport-balama pentru bratele ferestrei.

Diagonalele de la mijlocul tunelului se montează numai la serele care depăşesc o lungime de 60m.
La capete sunt prevăzute contravantuiri la coamă Cv şi contravantuiri orizontale Do şi Os. Aceste diagonale şi contravantuiri sunt executate din tv.Ø 26,9x2mm.
Amplasarea contravantuirilor poate fi vazută în desenul alaturat.

Profilul tip Ω este realizat din aluminiu şi are rolul de fixare a foliei putând fi folositdupa caz-profil simplu sau profil dublu.
În cazul alegerii variantei de închidere laterală a tunelului cu policarbonat, pe laterale se vor prevedea două sau mai multe rânduri de bare suport, bare executate din tv.20x20x2mm.
Serele sunt asigurate, suplimentar, la deplasare longitudinală cu contravantuiri în planul vertical axial al serei. Aceste contravantuiri fac legatura între longitudinala de coamă şi barele suport cultură şi sunt executate din tv.Ø Ø 26,9x2mm.
Reprezentarea şi poziţionarea acestor contravantuiri sunt redate în desenul de mai jos, unde sunt notate cu Zax. A se vedea şi desenul serei de la „date constructive” , de mai sus unde aceste contravantuiri apar desenate cu culoarea rosie.


Închideri frontale
Sistemul de rigidizare a arcelor frontale este materializat printr-un caroiaj din ţevi rectangulare verticale cu dimensiunea de 120x60x3mm şi bare orizontale executate din ţevi de diferite dimensiuni.
În funcţie de înălţimea serei „h” se aplică un rând sau mai multe rânduri de bare orizontale.
Aceste bare orizontale montate pe frontalele serei sunt necesare şi pentru fixarea instalaţiei de umbrire umidificare şi a ecranului de umbrire.


Uşi acces
Uşa este “îmbrăcată” în policarbonat de 8-10mm. Uşa se execută în varianta-două canate culisante.
Uşile se execută din ţeava de 30x30x2mm. În partea superioară a fiecărui canat se fixează câte două şuruburi port rolă.
Rolele culisează pentru închidere-deschidere într-un profil special, profil ce împiedică desfacerea uşilor.
În partea inferioară uşile culisează între două ţevi de 20x20x2mm fiind astfel împiedicate la deplasare în interior-exterior asigurându-se astfel un contact intim cu tocurile (stâlpii verticali) serei.
La serele de dimensiuni mari, accesul prin uşi se practică şi cu ”hol” cu scopul de a se asigura o protecţie, mai bună la frig, a interiorului serei. În general în aceste incinte se aplică substanţele dezinfectante de protecţie în timpul accesului personalului, în seră.
Prin proiectare se pot realiza variante cu spatiul tehnic prevăzut la accesul în seră.


Ventilarea serelor
În ambele variante ferestrele se prevăd în partea superioară a serei şi se rotesc cu ajutorul unei balamale fixată pe ţeava longitudinală de coamă.
Prin construcţie, braţul transversal al ferestrei se poate roti pentru „închidere” sau „deschidere” în jurul acestei balamale, aşa cum se poate vedea în desenul de mai jos.

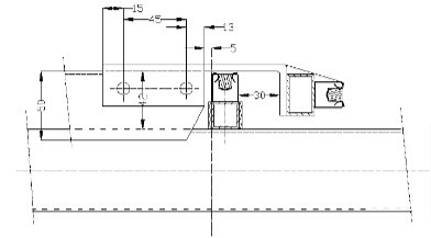
Ventilarea la coamă
Fereastra se execută pe toată lungimea unui tunel şi are lăţimea de 2m.
Ventilarea la coamă este ventilarea de bază şi este materializată printr-un ansamblu de ferestre acţionate de un ME cu reductor şi un KIT acţionare compus din cremalieră, cutia de pinioane şi piese de prindere.
Cremaliera
Cremaliera are şi rolul de a împiedica deschiderea accidentală a ferestrei sub acţiunea rafalelor de vânt şi deteriorarea acesteia.
Deschiderea şi închiderea ferestrelor se realizează cu un KIT de acţionare format dintr-un ME cu reductor şi un mecanism pinion-cremalieră. KIT-ul de acţionare fereastra este de fabricaţie „de Gier“ Olanda.
Este prevăzut un motoreductor de acţionare KIT fereastră pe fiecare tunel


Pe ţeava longitudinală fixată pe arcada şi pe capătul braţului transversal se prind profilele tip Ω. Prin fixarea foliei în aceste profile , se asigură închiderea etanşă a serei când braţul transversal al ferestrei este în poziţia „închis” şi se sprijină pe arcada serei.
Gestionarea deschiderii şi închiderii ferestrelor este realizată de calculatorul de climă al staţiei meteo.
În desenele şi pozele următoare se pot vedea elemente constructive ale celor două feluri de ventilare: la coamă şi laterală.


Cremaliera prinde plasare în cutia de pinioane, deschizând sau închizând ferestrele prin mișcarea laterală a ferestrelor.
Cremaliera are un rol de a împiedica deschiderea accidentală a ferestrelor sub acțiunea vântului și de a asigura o închidere ermetică.



În general deschiderea ferestrei nu depăşeşte un „unghi” mai mare de 65º faţă de arcada serei.

În general la viteze a vântului (sau rafalelor) peste 20km/h calculatorul comandă închiderea ferestrelor.
Pe ţeava longitudinală fixată pe arcada şi pe capătul braţului transversal se prind profilele tip Ω din aluminiu.
Prin fixarea foliei în aceste profile, se asigură închiderea etanşă a serei când braţul transversal al ferestrei este în poziţia „închis” şi se sprijină pe arcada serei.

Jgheaburi şi burlane
Tunelele de margine nu sunt prevăzute cu jgheab pe partea exterioară, perimetrală.
Pe ţeava longitudinală fixată pe arcada şi pe capătul braţului transversal se prind profilele tip Ω din aluminiu.
Prin fixarea foliei în aceste profile, se asigură închiderea etanşă a serei când braţul transversal al ferestrei este în poziţia „închis” şi se sprijină pe arcada serei.
Apa colectată în jgheaburi se scurge pe sol prin burlane, în canalizarea serei.
Jgheaburile se execută din tabla zincată cu grosimea de 1,5mm.
Pe „bordura” de sus se va prinde profilul tip ῼ în care se fixează folia. În acest fel sera este complet închisă cu folie.
Burlanele sunt executate din tabla zincată de 0,5 mm sau se folosesc tevi din PVC.





Sub jgheabul de preluare a apei pluviale se montetază jgheabul pentru preluarea condensului (jgheab anticondens).
Jgheabul anticondens este realizat din tabla zincată cu grosimea de 0.5mm.


SERE tip SVS înregistrate la AFIR în B.D.P.R.

Seră SVS 10x2x4,5x(50-100)m
Dotări standard:
Învelitoare din folie dublă 0,200mm gonflabilă tip Mantzaris ;
Ventilare motorizată la coamă;Înălţime = 4,5;5,5;6,6;7 m
Lungime = 50-100m
Lăţime = 10m
Sistem cultivare – la sol sau hidroponic;
Sistem de control şi comandă prin staţia meteo;
Observaţii echipare:
Seră SVS 50x4x6,25x107,5
Dotări standard:
Învelitoare din folie dublă 0,200mm gonflabilă tip Mantzaris;
Pereţi laterali şi capete seră placate cu policarbonat 8mm;
Ventilare motorizată la coamă;
Înălţime = 6,25m
Lungime = 107,5m
Lăţime = 50m
Sistem cultivare – la sol;
Sistem încălzire cu termogeneratoare, putere 145kW/buc;
Sistem de control şi comandă prin staţia meteo;
Observaţii echipare:
Seră SVS 50x4x6,25x145
Dotări standard:
Învelitoare din folie dublă 0,200mm gonflabilă tip Mantzaris.
Pereţi laterali şi capete seră placate cu policarbonat 8mm Ventilare motorizată la coamă;
Înălţime = 6,25m
Lungime = 107,5m
Lăţime = 50m
Sistem cultivare – la sol;
Sistem încălzire cu termogeneratoare,putere 145kW/buc;
Sistem de control şi comandă prin staţia meteo;





